Construction d’un immeuble à appartements

Reference
415NRL
Lieu

1190 Forest
Belgique

Cover
Image
Axonométrie du projet dans son contexte urbain
Client
Commune de Forest
Surface
700 m²
Phase
Budget
€ 2 200 000
Blocks
1 column
Original
Image
Axonométrie du projet dans son contexte urbain
Text

Construction d'un immeuble à appartements

Layout
Half
to the right
0

Une implantation à l'interface des sphères publiques et privées 

Le projet propose un volume sculpté qui cherche à dialoguer avec le contexte bâti, jumelant avec les contraintes urbaines et avec les ambitions légales d’habitabilité́ : le rez-de-chaussée reste dans l’alignement de la chaussée tandis que les plans de façades se retirent aux R+1 et R+2 pour s’affranchir du voisin nord. Ces différents retraits créent une kyrielle de plateformes tantôt plantées, tantôt utilisées comme terrasses pour les logements.

Medias
Image
schéma axonométrique de l'implantation volumétrique du projet
Image à gauche
Top Align
middle
Layout
1 column
to the right
0
1 column
Original
Image
Coupe longitudinale du projet

La façade avant et son expression urbaine

La façade traduit le volume sculpté qui accueille l’ensemble du programme de manière compacte et simple, tout en conservant une hauteur modérée. Elle intègre également une entrée semi-publique avec la passage cochère au rez-de-chaussée, avec l’intention de créer un lien visuel entre l’intérieur d’îlot et la chaussée.

Medias
Image
Photo-collage de la façade avant
Image à droite
Top Align
middle

La façade arrière et sa relation à l'îlot 

Au-delà de la construction à rue, la parcelle incarne l’ambition d’obtenir un ensemble urbain plus vaste et composé. Considérant les nombreux filtres déjà présents sur le site, le projet suggère un dessin de jardin plus décomplexé et intégré dans sa globalité.

Le dispositif fait la part belle aux limites naturelles et offre ainsi un dessin plus heureux proposant des perspectives visuelles plus riches qu’une énième limite physique. De plus, la légère dépression au centre du jardin permet aux eaux de rejoindre la noue centrale. Le projet des abords propose une présence forte et symbolique de l’eau, avec une dimension ludique et utilitaire. 

Medias
Image
Photo-collage de la façade avant
Image à gauche
Top Align
middle

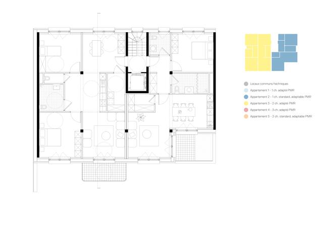
Envisager l’adaptabilité

Le projet propose une capacité d’adaptabilité spatiale et d’accessibilité. La structure imaginé est simple et rationnelle privilégiant de grandes pièces carrées logées dans des appartements généreusement ouverts et modulables. La proposition prévoit autant que possible que les appartements réguliers dits « non PMR » soient néanmoins adaptables, dans le sens aménageables au gré des occupations, aux handicapes ou à tout autre changement de destination. Seul le noyau central « en dur » et contreventant demeure non modifiable. 

Au réez-de chaussée se trouvent l’entrée et les espaces techniques, ainsi qu’un appartement donnant à la fois sur la rue et sur le jardin. Les pièces de vie ainsi reparties sur les 2 façades offrent une dynamique intérieure avec interface entre le quartier à l’avant et l’intérieur d’ilot à l’arrière.

Layout
Half
to the right
0

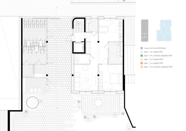
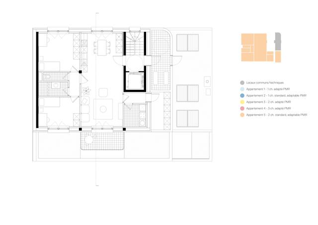
Les ambitions spatiales

Les principes de composition décrits ci-avant sont appliqués également aux étages supérieurs avec certaines variations.

L’ensemble des appartements sont composés avec une travée de chambres et une travée d’espaces de séjour traversant. De plus chaque logement dispose d’un espace extérieure par les retraits volumétrique ou par l’ajout d'un balcon en façade arrière.

Ainsi chaque appartement bénéficie d’une orientation double complétée par un espace extérieur privatif propre à chaque logement.

Layout
Half
to the right
0
4 columns
Original
Image
croquis d'ambiance au rez-de-chaussée
Image
croquis d'ambiance du premier étage
Image
croquis d'ambiance du deuxième étage
Image
croquis d'ambiance du troisième étage - vue extérieure du balcon
Team
SEA
Zeugma
RYA
ASM
Date de début
2024
Page détail activée
1